Asking for price
Prado Projects presents Haga 9, a villa with a bohemian air and architectural history, but the interior transports its guests into a space created and designed to be as free as possible, full of volume and light.
The thenology that Prado Projects has thought to use in this unique project provides the necessary facilities of today's century and will certainly meet the needs long into the future.
Privacy and comfort were the main objectives of Prado Projects.
The location has been carefully chosen so that the area is an aristocratic one, renowned for its preservation. Free from urban hustle and bustle, rich in nature and spectacular architecture, cultural centers, restaurants and all this contributed to the title of Bucharest - "Little Paris".
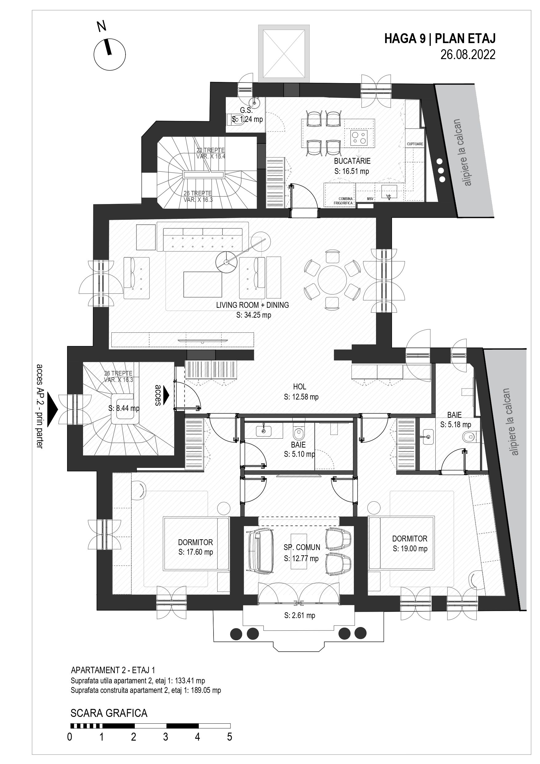
Technical Details
- Floor: 2
- Rooms: 3
- Land area: 421 sqm
- Built area: 181.34 sqm
- Usable area: 151.12 sqm
-
Apartment 1
Asking for price
find out more -
Apartament 3
Asking for price
find out more







